Обратите внимание! Проект можно изменить по вашим требованиям и желаниям: добавить перегородки и двери; переместить или убрать окна; изменить строительные материалы и т.д.
*Условия Супер цены узнавайте у менеджера по телефону +7 (937) 807-77-67
Комплектация
Дача: 984246 руб.
Коттедж: 1640000 руб.
Коттедж+: 1884032 руб.
Дача: 820000 руб.
Коттедж: 1517000 руб.
Коттедж+: 1820400 руб.
Дача: 893800 руб.
Коттедж: 1271000 руб.
Коттедж+: 1886000 руб.
Характеристики
Жилая / Общая площадь: 82 м²
Площадь застройки: 60 м²
Кубатура: 376 м² m³
Высота дома: 8 м²
Угол наклона кровли: 38 м²
Количество этажей: 2 шт.
Количество комнат: 10 шт.
Количество спален: 4 шт.
Описание
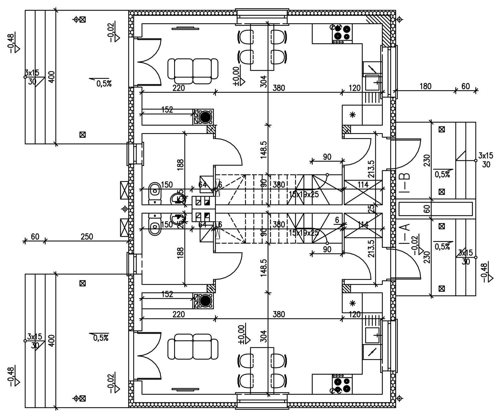
Проект дома DM-6095B ШАКЛАК
Жилой дом в двухквартирном доме. Каждый сегмент рассчитан на 3-5 человек. Здание с служебным чердаком, без гаража. Здание при покупке одного сегмента можно разместить на участке шириной 14,55 м, предполагая посадку одной стеной в 3 м от границы участка. Указанная цена и параметры (за исключением ширины участка) действительны для одного сегмента.









